Portfolio
Projects




Interiors
4 Evergreen Ave. • Kennebunk
49 Winona Ave. • Ocean Park
Giselle Lane • Raymond
20 Colby Ave. • Ocean Park
Sub-Divisions
Duross Place • Saco, Maine
Duross Place, currently under construction, is an 8-Unit Separate Home Condominium project. Each unit will have 3 bedrooms, 2½ Baths, and a 2 car garage.
8 Single Family Homes
3 Bedrooms – 2½ Baths – 2 Car Garage
- Tile Entry Hall, Bathrooms and Laundry
- Wood Stairs
- Solid Surface Countertops
- Wood or Luxury Vinyl Plank Floors
- Generous Appliance Allowance
- Viessmann High Efficiency Propane Boiler
- Forced Hot Water Baseboard Heat
- Insulated Garage Door with Opener
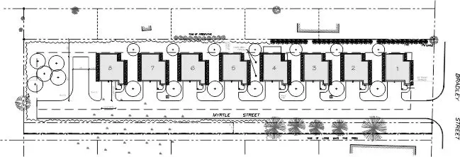
284 Bradley Street – Route 5 – Saco, ME
- Sidewalks to Local Shopping
- 10 Min. Drive to the Beach
Zillow Listing

Elevations (PDF)

Floor Plans (PDF)

Section (PDF)

Site Plan (PDF)
FERRY LANDING • Saco, Maine
Located in Saco, Maine, Ferry Landing is a 28-unit subdivision built on 20 acres.
Designed, developed and built by Doyle Enterprises, each house and lot is individually owned.
A homeowner’s association takes care of all exterior maintenance. While the basic structure and layout of the Ferry Landing homes is the same, each individual owner was able to make interior style modifications. By working closely with each buyer during the building process, Doyle Enterprises was able to insure that every home met the unique tastes and needs of the individual customers.
The aerial photograph shows the benefits of not clear cutting a site, a common practice with many developers. The natural beauty is maintained so that it doesn’t take years for newly planted trees to grow.
Sea Orchards • Wells, Maine
Sea Orchards is a 9 home development tucked into a quiet 5 acres just off Route 1 in Wells with customized interiors designed to meet the home owners preferences.
Like all of the homes Doyle Enterprises builds, the Sea Orchards Homes adhere to the concept that the quality of a living space is more important than its size. The form, function, detail and finish of the interiors is incomparable.
A homeowner’s association takes care of all exterior maintenance.
"*" indicates required fields


















































